Haus Sunlight

Einfamilienhaus - Wohnfläche ca. 142 m2


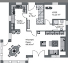
Haus Breisach

Einfamilienhaus - Wohnfläche ca. 141,60 m²


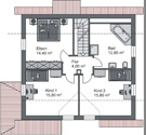
Haus Bötzingen

Einfamilienhaus - Wohnfläche ca. 141,44 m²


Haus Trend 107

Einfamilienhaus - Wohnfläche ca. 107,08 m²


Haus Tessin-E

Stadtvilla - Wohnfläche ca. 131,65 m²


Flair

Einfamilienhaus - Wohnfläche ca. 145 m2


Diese Hausbeispiele sollen nur als kleine Anregung für Sie dienen. Unser Ziel ist es für Sie das Haus Ihrer Träume zu realisieren. Egal ob als Massivhaus in Liapor Systembauweise, Fertighaus in ökologische Holzbauweise oder klassisches Massivhaus Stein auf Stein, Sie entscheiden die Ausführungsart, welche am besten zu Ihnen passt.

Wir bauen Ihr Haus im Süddeutschen Raum. Unser Vertriebsgebiet erstreckt sich in fast ganz Baden Württemberg vom Landkreis Lörrach, über Müllheim, das Markgräfler Land, Freiburg, Breisgau Hochschwarzwald, Landkreis Emmendingen, bis Offenburg.

 

>Anfrage Infomaterial


<< zurück zur Übersicht

Montagebeispiel Liapor-Wandsystem
bei einem Zweifamilienhaus.

Die Vorteile unserer massiven Systemwand

• Freie Architektenplanung nach
   Kundenwunsch

• wir bauen Ihr Haus auch nach bestehenden Plänen

• Dämmhülle entspricht Effizienz 55

• schnelle Bauzeit von 4-5 Monaten

• Hochwertige Massivbauweise

• trockene Bauteile durch Einsatz von
   Fertigteilwänden und Decken

• Wärmebrückenfrei-
   keine Schimmelbildung

• Naturbaustoff Liapor-Ton -
   Dampfdiffusionsoffen- keine Folie

• Top Raumklima durch große
   Speichermasse - 1600 kg/m³

• hohe Wertbeständigkeit durch
   massive Bauweise

• rundum gedämmte Keller in
   wasserundurchlässiger Ausführung

• Alternativ Thermobodenplatte
   anstelle Keller

• Schalungsglatte Wände -
   kein Innenputz erforderlich